Associated Pages:
_________________________________________________________
The Atkins Fire Station
The Atkins Fire Station was destroyed in the August 2020 derecho. Damage was so severe that emergency vehicles were trapped inside the structure and not available for emergency calls. The station was originally built in 1992. Fire equipment and office items are currently being housed at various locations around Atkins. The first responders have no training facilities and minimal office space. The fire station is really a first responder station in that most calls are related to medical issues, vehicle or farm accidents, or home emergencies like carbon monoxide poisoning. First responder calls in Atkins have doubled within the past seven years.

Get answers to Frequently Asked Questions HERE. Have a question? Ask your own question by emailing: CityClerk@cityofatkins.org
New Fire Station Design
Beginning in the summer 2021, a Fire Station Design Committee appointed by the City Council worked to design the City’s replacement fire station. The public meetings of this committee were posted as required by law. Solum Lang Architects, a local architectural firm, was hired by the City to design the new station. They have experience building several fire stations for smaller communities in the region.
Solum Lang worked with the design committee to prepare design documents that were presented to the community and the City Council a few times over 2022 and 2023, with the latest public presentation at a special City Council meeting on February 15, 2024. That presentation is linked HERE (February 15, 2024 Presentation on Fully-Designed Fire Station Project)

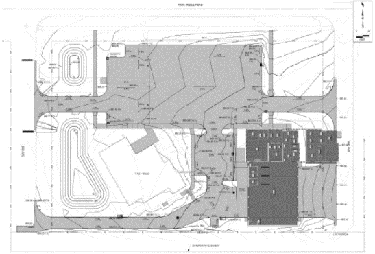
Fire Station Design Rendering on City Hall/Library Site
This presentation outlines a design plan that incorporates a 15,282 square foot building on the current City Hall/Library site. The opinion of probable cost for the full project (construction costs plus the cost of design, furnishing, and a construction contingency allowance) is $6,626,328.
The bid documents include four deduct alternates that would be considered to be excluded or included at the time of project bidding, with the hope that the competitive bid process yields actual costs that are lower than the estimate. Those four deducts result in a new opinion of probable cost at $6,176,389.
Included Deduct Alternates in Full Plan
- Deduct Alternate 1: PEMB South Bay Wall (PEMB=Pre Engineered Metal Building)
The South wall in the apparatus bay is reduced from steel stud structure and brick exterior to pre-engineered metal building girts and metal panel exterior. - Deduct Alternate 2: Insulated Overhead Doors
All overhead apparatus bay doors are reduced from all glass panels to insulated panels with just two rows of glass panels. - Deduct Alternate 3: Mezzanine Build Out
The mezzanine is reduced from fully constructed dorms, restroom, kitchen, and day room to rough-ins only with the mechanical room. - Deduct Alternate 4: Return Apron to 3rd Ave.
The West return apron is reduced from a driveway off 3rd Ave to a driveway through the first
responder lot connecting back to the main parking lot.

Site Plan of fully-designed Fire Station – $6.6M/$6.1M options
FEMA has approved the project
The City of Atkins learned Friday, May 3, 2024, from the Iowa Department of Homeland Security that FEMA has approved the project scope for the Fire Station project based on the full design describe above. There is a final step of FEMA obligation that will occur once the City provides a timeline for starting and completing the project. FEMA expects the City to provide a timeline quickly to keep the process moving.
In order to set the timeline for the Fire Station rebuilding project, the City Council will now determine the final design of the project to place out for bid.
Alternate Fire Station Design
As construction costs across the region and country experienced significant inflation, City Council members asked that the design plans be analyzed to explore lower-cost options for the station. Alternate design plans have been developed, but are not fully designed or engineered.
A summary of the Opinion of Probable Cost for the Alternate Designs can be seen by clicking HERE.
The lowest cost alternative design is $5,405,047. The details of the changes made to the full design to achieve this option are outlined below. This design will require a few months of design work before the project will be ready to be publicly bid, but the assurance is that this project can be bid and break ground in 2024. Further, the scope of these design changes does not require FEMA to re-evaluate the project for compliance with their grant program.

Fire Station Alternative Design – $5.4M Option
Changes to the original design outlined in the presentation linked above include:
The previous four Deduct Alternates from the design above:
- Alternate 1: PEMB South Bay Wall. Opinion of probable cost removed: $27,033.
- Alternate 2: Insulated Overhead Doors. Opinion of probable cost removed: $121,440.
- Alternate 3: Mezzanine Build-Out. Opinion of probable cost removed: $301,465.
- Alternate 4: Removal of return apron to 3rd Ave. Opinion of probable cost removed: $130,680.
This partially designed alternate:
- *Deduct Alternate 5: Apparatus Bay Reduction
The apparatus bay is reduced by 8’-0” from the South end eliminating man doors from the West and East sides of the building along with the SCBA room. The SCBA compressor and tank fill would move to the apparatus bay along the South wall. Opinion of probable cost removed: $105,005.
*Note that Deduct Alternate 5 is required to be part of the base bid for both site reduction options that utilize the existing site parking.
Significant reductions to the parking lot design:
- This option is intended to make modifications to the existing parking lot to remove full parking lot reconstruction costs from the project.
- These options will require the City to grant variances to the City’s minimum parking requirements. The requirement is 25 existing spaces for City Hall/Library, and an additional 51 spaces for the new square footage and uses of the fire station, for a total of 76 spaces. The new option provides 25 existing spaces, an additional 24 spaces of public parking, and 9 reserved spaces for responding fire personnel.
A second option that includes a modified parking lot design that includes the drive-through apron along the south side of the site and potentially resolves turning issues for fire equipment in the City Hall/Library parking lot has an opinion of probable cost of $5,588,058.

Fire Station Alternative Design – $5.58M option